Présentation de la notice : Manuel utilisateur Réfrigérateur Wells ICP200ST
Recherchez parmi les 1 page de la notice : Manuel utilisateur Réfrigérateur Wells ICP200ST pour trouver les informations qu'il vous manque. Vous ne trouvez pas les réponses à vos questions ? Réservez une vidéo assistance en moins de 2 minutes.
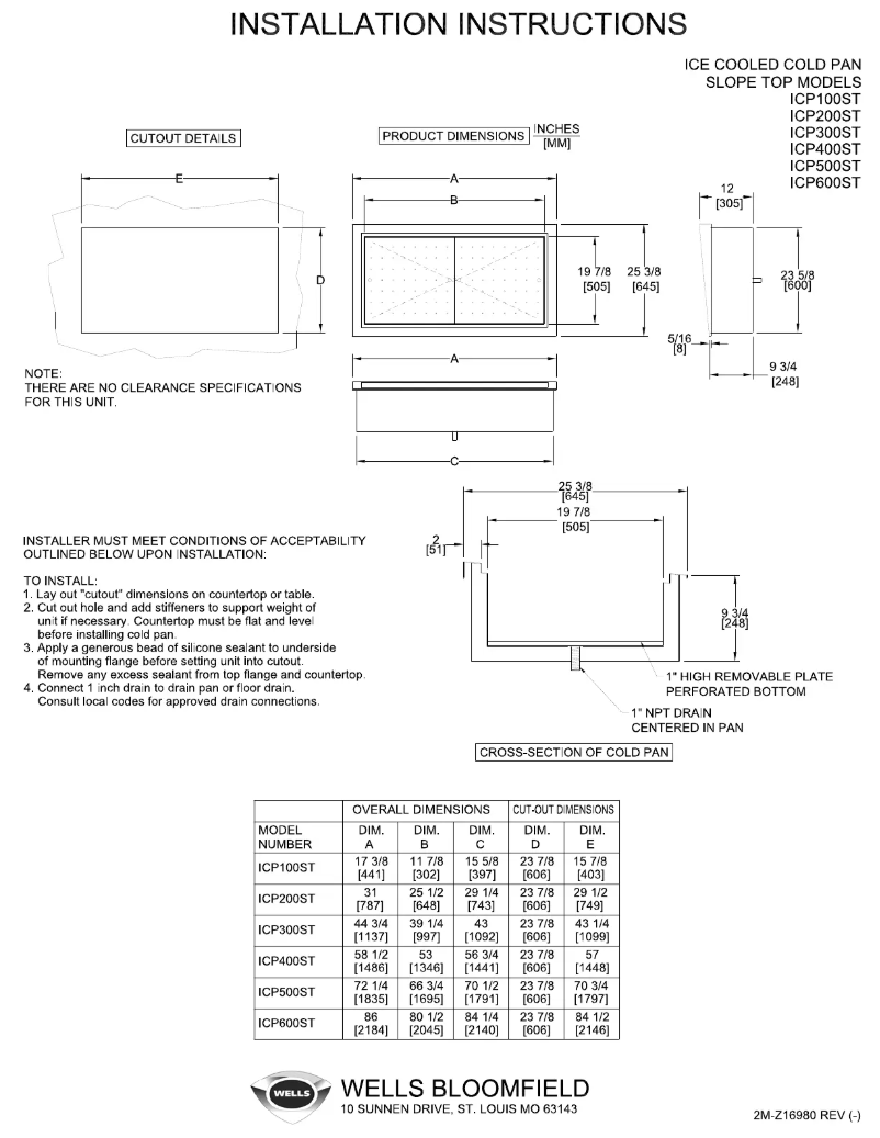
Caractéristiques
Marque | Wells |
Modèle | ICP200ST |
Catégorie | Appareils ménagers |
Type de produit | Réfrigérateur |
Nombre de pages | 1 Page |
Type de fichier |
