Miniature du produit Guide d'installation

Guide d'installation : Robinhood RO 600 hotte

Robinhood Appareils ménagers Hotte

De quoi avez-vous besoin ?

En validant, je déclare accepter sans réserve les Conditions Générales et la Politique de confidentialité de wenony.be. En validant les informations, je confirme commander un contrat WeNony Premium au tarif de 0,90 € le premier mois, puis au tarif de 49,00 € par mois avec un engagement de 12 mois. Je confirme être habilité à engager l’entreprise dans ces conditions.

Présentation de la notice : Guide d'installation Hotte Robinhood RO 600

Recherchez parmi les 10 pages de la notice : Guide d'installation Hotte Robinhood RO 600 pour trouver les informations qu'il vous manque. Vous ne trouvez pas les réponses à vos questions ? Réservez une vidéo assistance en moins de 2 minutes.

Caractéristiques

Marque Robinhood
Modèle RO 600
Catégorie Appareils ménagers
Type de produit Hotte
Nombre de pages 10 Pages
Type de fichier
Page / 10
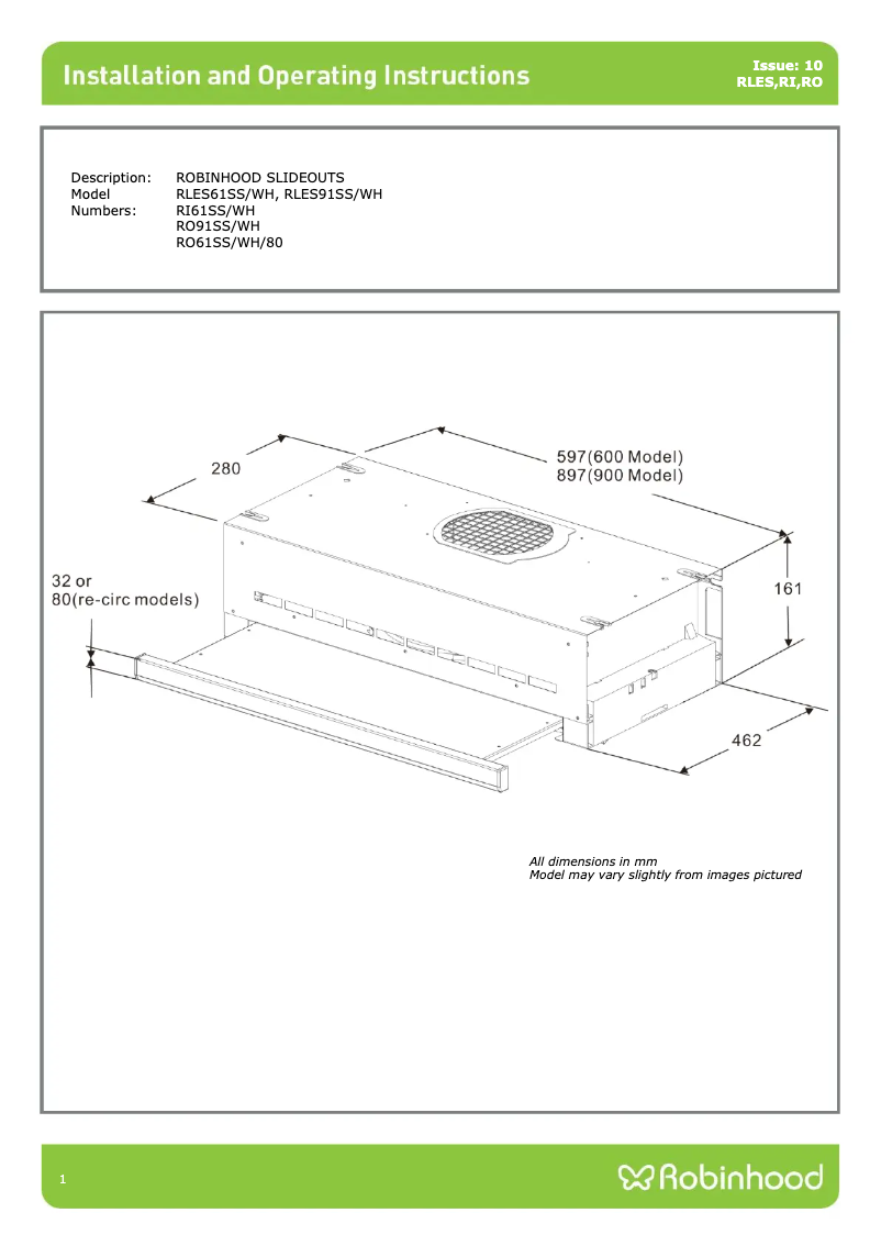
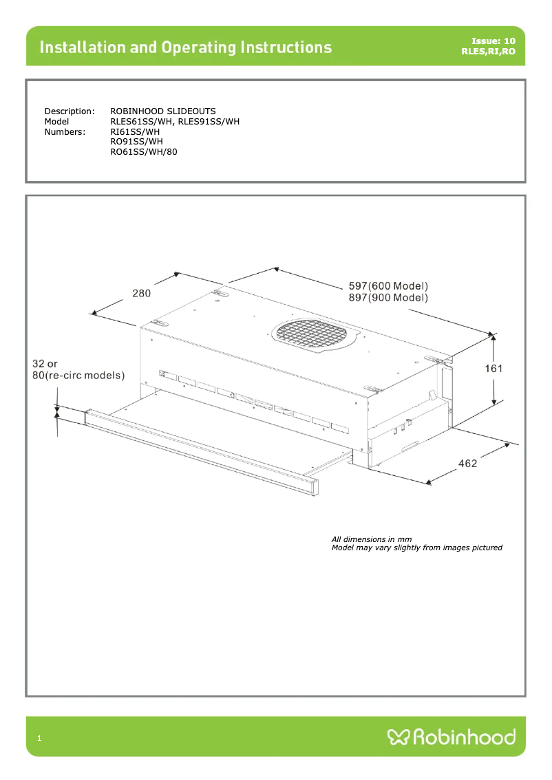
Page n°1 - Guide d'installation Robinhood RO 600