Miniature du produit Fiche technique

Fiche technique : Hager WBSP2SUSBAC prise murale

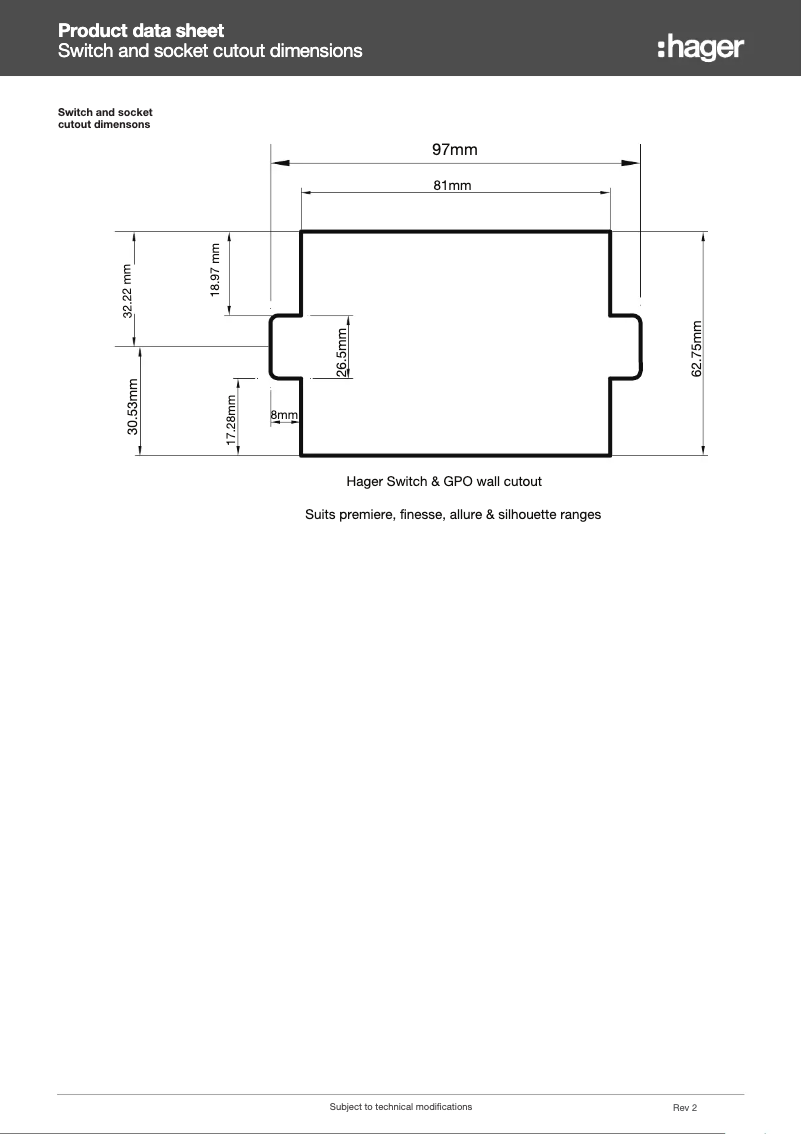
Hager Electroménager Prise murale

De quoi avez-vous besoin ?

En validant, je déclare accepter sans réserve les Conditions Générales et la Politique de confidentialité de wenony.be. En validant les informations, je confirme commander un contrat WeNony Premium au tarif de 0,90 € le premier mois, puis au tarif de 49,00 € par mois avec un engagement de 12 mois. Je confirme être habilité à engager l’entreprise dans ces conditions.

Présentation de la notice : Fiche technique Prise murale Hager WBSP2SUSBAC

Recherchez parmi les 1 page de la notice : Fiche technique Prise murale Hager WBSP2SUSBAC pour trouver les informations qu'il vous manque. Vous ne trouvez pas les réponses à vos questions ? Réservez une vidéo assistance en moins de 2 minutes.

Caractéristiques

Marque Hager
Modèle WBSP2SUSBAC
Catégorie Electroménager
Type de produit Prise murale
Nombre de pages 1 Page
Type de fichier