Miniature du produit Guide d'installation

Guide d'installation : Hager JKD125MID compteur d'énergie

Hager Electroménager Compteur d'énergie

De quoi avez-vous besoin ?

En validant, je déclare accepter sans réserve les Conditions Générales et la Politique de confidentialité de wenony.be. En validant les informations, je confirme commander un contrat WeNony Premium au tarif de 0,90 € le premier mois, puis au tarif de 49,00 € par mois avec un engagement de 12 mois. Je confirme être habilité à engager l’entreprise dans ces conditions.

Présentation de la notice : Guide d'installation Compteur d'énergie Hager JKD125MID

Recherchez parmi les 2 pages de la notice : Guide d'installation Compteur d'énergie Hager JKD125MID pour trouver les informations qu'il vous manque. Vous ne trouvez pas les réponses à vos questions ? Réservez une vidéo assistance en moins de 2 minutes.

Caractéristiques

Marque Hager
Modèle JKD125MID
Catégorie Electroménager
Type de produit Compteur d'énergie
Nombre de pages 2 Pages
Type de fichier
Page / 2
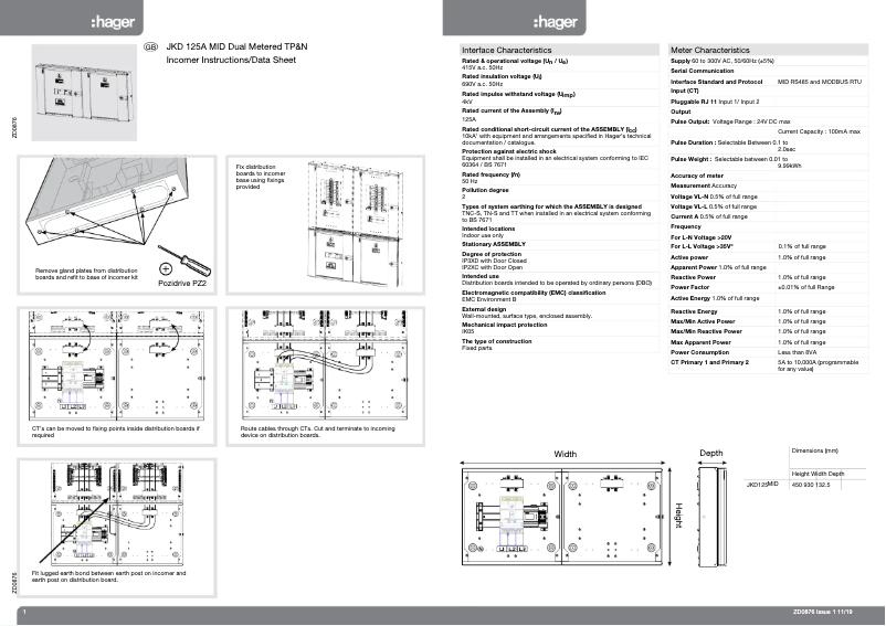
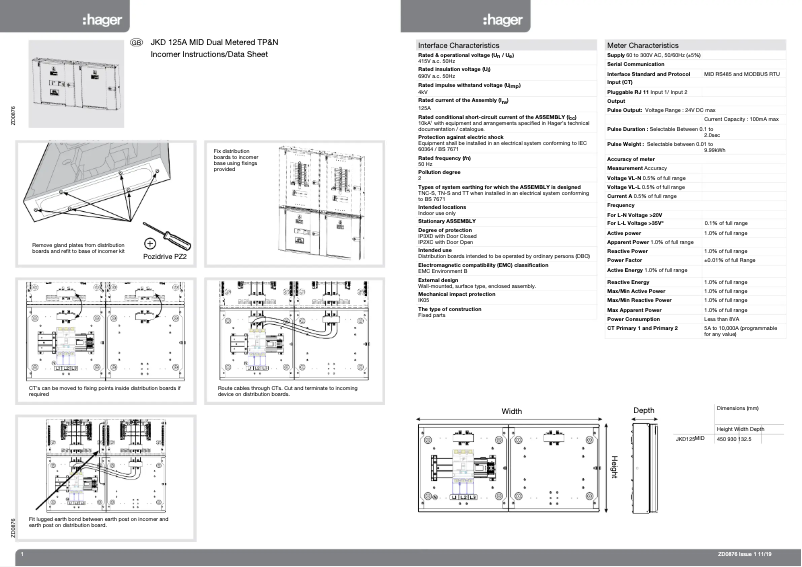
Page n°1 - Guide d'installation Hager JKD125MID