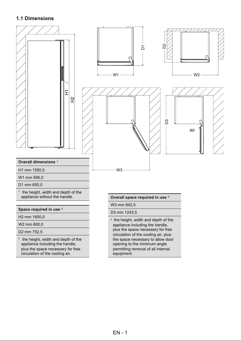
Présentation de la notice : Dessin technique Congélateur Cylinda F2155NVF
Recherchez parmi les 1 page de la notice : Dessin technique Congélateur Cylinda F2155NVF pour trouver les informations qu'il vous manque. Vous ne trouvez pas les réponses à vos questions ? Réservez une vidéo assistance en moins de 2 minutes.
Caractéristiques
Marque | Cylinda |
Modèle | F2155NVF |
Catégorie | Appareils ménagers |
Type de produit | Congélateur |
Nombre de pages | 1 Page |
Type de fichier |
