Miniatura del producto Dibujo técnico

Dibujo técnico : Cylinda KF2144E Refrigerador

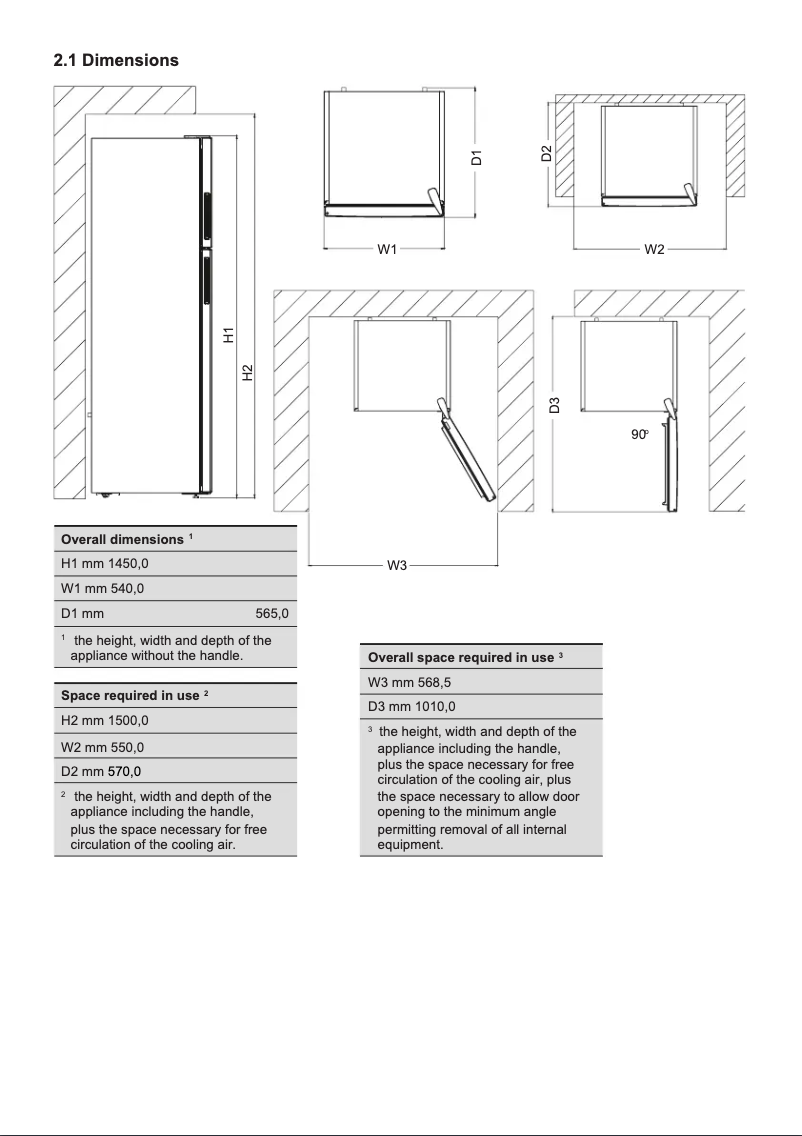
Cylinda Electrodomésticos Refrigerador

Busca entre las 1 page del manual: Dibujo técnico Refrigerador Cylinda KF2144E para encontrar la información que necesitas. ¿No encuentras las respuestas a tus preguntas? Reserva una asistencia por video en menos de 2 minutos.

Características

Marca Cylinda
Modelo KF2144E
Categoría Electrodomésticos
Tipo de producto Refrigerador
Número de páginas 1 Página
Tipo de archivo
Página / 1
Página 1 del manual Dibujo técnico Cylinda KF2144E